THÔNG TIN DỰ ÁN
Tên dự án: Nhà Phố Lavila Sài Gòn
Loại hình: Nhà phố
Phong cách: HIỆN ĐẠI
Thiết kế & Thi công by: PS INTERIOR DESIGN
──────────────────────────────────────────────────────────────────
PHONG CÁCH THIẾT KẾ
Sự hoàn mỹ đến tuyệt đối được thể hiện qua từ những chi tiết nội thất cực kỳ tỉ mỉ, cầu kỳ và đẹp mắt cho đến sự sắp xếp các chi tiết đầy tinh xảo về nội thất trong không gian căn nhà. Với mục tiêu nâng tầm cuộc sống thượng lưu, 𝐏𝐒 𝐈𝐍𝐓𝐄𝐑𝐈𝐎𝐑 𝐃𝐄𝐒𝐈𝐆𝐍 đã tập trung vào trải nghiệm thẩm mỹ và công năng nhằm tạo ra những không gian Luxury sang trọng và đẳng cấp cho gia chủ.
──────────────────────────────────────────────────────────────────
HÌNH ẢNH KHÔNG GIAN
KHÔNG GIAN TẦNG TRỆT

PHÒNG KHÁCH
Với các đường nét tỉ mỉ và họa tiết hoa văn tinh tế, phòng khách được thiết kế sang trọng và được bố trí nội thất cao cấp, hệ thống đèn độc đáo mang đến tổng thể không gian căn phòng vô cùng bắt và thu hút mọi ánh nhìn.

(Nội thất Phòng khách được thiết kế bởi PS INTERIOR DESIGN)

(Nội thất Phòng khách - Bếp được thiết kế bởi PS INTERIOR DESIGN)

(Nội thất Phòng khách được thiết kế bởi PS INTERIOR DESIGN)

(Nội thất Phòng khách được thiết kế bởi PS INTERIOR DESIGN)
PHÒNG BẾP
Phòng bếp được thiết kế thông thoáng với không gian mở kết nối với các khu vực bên ngoài, căn phòng được PS thiết kế với đầy đủ các nội thất và tập trung vào công năng giúp việc nấu ăn và sinh hoạt có thể thuận tiện hơn bao giờ hết. Đặc biệt căn phòng vô cùng nổi bật với tủ rượu có tone màu chủ đạo là màu vàng đồng kết hợp với hệ thống đèn led và cánh kính giúp không gian phòng bếp sang trọng thêm bội phần.

(Nội thất Phòng khách được thiết kế bởi PS INTERIOR DESIGN)

(Nội thất Phòng khách - Bếp được thiết kế bởi PS INTERIOR DESIGN)

(Nội thất Tủ bếp được thiết kế bởi PS INTERIOR DESIGN)

(Nội thất Phòng khách - Bếp được thiết kế bởi PS INTERIOR DESIGN)

(Nội thất Phòng khách - Bếp được thiết kế bởi PS INTERIOR DESIGN)

(Nội thất Phòng khách - Bếp được thiết kế bởi PS INTERIOR DESIGN)

(Nội thất sân vườn được thiết kế bởi PS INTERIOR DESIGN)

(Nội thất sân vườn được thiết kế bởi PS INTERIOR DESIGN)

(Nội thất sân vườn được thiết kế bởi PS INTERIOR DESIGN)

(Nội thất Toilet tầng trệt được thiết kế bởi PS INTERIOR DESIGN)
KHÔNG GIAN TẦNG 1

PHÒNG NGỦ MASTER
Phòng ngủ master có diện tích rộng rãi và được bố trí độc đáo hai trong một với không gian phòng ngủ và phòng thay đồ, tone màu sắc trung tính trẻ trung được đồng bộ toàn bộ căn phòng giúp căn phòng vừa sang trọng, tinh tế vừa đầy đủ tiện nghi và đồng thời giúp gia chủ có thể dễ dàng sinh hoạt nghĩ ngơi, thư giản trong chính căn phòng của mình.

(Nội thất Phòng ngủ Master được thiết kế bởi PS INTERIOR DESIGN)

(Nội thất Phòng ngủ Master được thiết kế bởi PS INTERIOR DESIGN)

(Nội thất Phòng ngủ Master được thiết kế bởi PS INTERIOR DESIGN)

(Nội thất Phòng ngủ Master được thiết kế bởi PS INTERIOR DESIGN)

(Nội thất Phòng ngủ Master được thiết kế bởi PS INTERIOR DESIGN)

(Nội thất Phòng ngủ Master được thiết kế bởi PS INTERIOR DESIGN)

(Nội thất Phòng ngủ Master được thiết kế bởi PS INTERIOR DESIGN)
PHÒNG NGỦ CHO BÉ
Với tone màu sắc xanh cá tính, tươi mát, căn phòng được trang trí vô cùng đáng yêu và được bố trí thông minh tối ưu diện tích giúp bé có thể tự do sáng tạo, vui chơi trong căn phòng của mình.

(Nội thất Phòng ngủ được thiết kế bởi PS INTERIOR DESIGN)

(Nội thất Phòng ngủ được thiết kế bởi PS INTERIOR DESIGN)

(Nội thất Phòng ngủ được thiết kế bởi PS INTERIOR DESIGN)

(Nội thất Toilet phòng ngủ được thiết kế bởi PS INTERIOR DESIGN)

(Nội thất Toilet phòng ngủ được thiết kế bởi PS INTERIOR DESIGN)
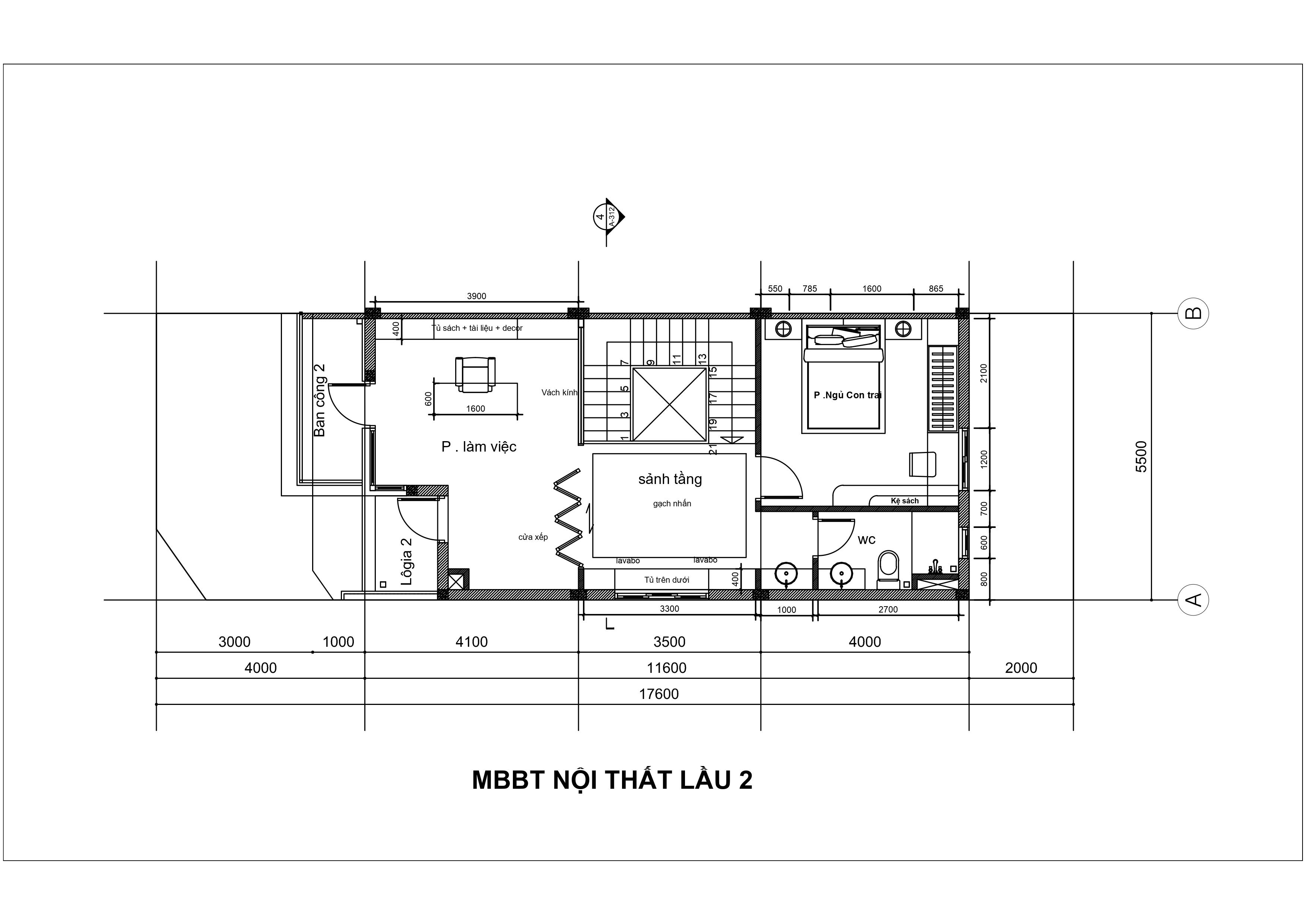
KHÔNG GIAN TẦNG 2

PHÒNG NGỦ MASTER
Phòng ngủ master được chọn lựa gam màu trung tính phối cùng với các thiết kế nội thất thông minh tạo cho căn phòng vừa sang trọng, vừa tiện nghi và vô cùng ấm áp.

(Nội thất Phòng ngủ master được thiết kế bởi PS INTERIOR DESIGN)

(Nội thất Phòng ngủ master được thiết kế bởi PS INTERIOR DESIGN)

(Nội thất Phòng ngủ master được thiết kế bởi PS INTERIOR DESIGN)

(Nội thất Phòng làm việc được thiết kế bởi PS INTERIOR DESIGN)

(Nội thất Phòng làm việc được thiết kế bởi PS INTERIOR DESIGN)

(Nội thất Tầng 2 được thiết kế bởi PS INTERIOR DESIGN)

(Nội thất Toilet tầng 2 được thiết kế bởi PS INTERIOR DESIGN)
PS INTERIOR DESIGN - THIẾT KẾ & THI CÔNG NỘI THẤT
Văn phòng: 431 Tô Hiến Thành, Phường 14, Quận 10, TP. Hồ Chí Minh
Xưởng sản xuất: D20/542 Trịnh Quang Nghị, Ấp 4, Xã Phong Phú, Huyện Bình Chánh, TP. HCM
Hotline: 0901 669 123
Email: noithatps@gmail.com
Fanpage: PS Interior Design
TikTok: PS Interior Design




