Thiết kế nội thất căn hộ Diamond Centery là điều mà nhiều người quan tâm. Đây là một trong những dự án cao cấp thuộc khu đô thị Celadon City, tọa lạc tại quận Tân Phú, TP.HCM. Với vị trí đắc địa và thiết kế tinh tế, mặt bằng căn hộ Diamond Centery mang đến cho cư dân không gian sống hiện đại, tiện nghi và tối ưu.
Có thể bạn quan tâm:
- Thiết Kế Nội Thất Căn Hộ 2 Phòng Ngủ Diamond Centery Celadon City
- Chi Phí Thiết Kế Nội Thất Căn Hộ Diamond Centery Celadon City
- Thiết Kế Nội Thất Căn Hộ Diamond Centery Celadon City 120m2
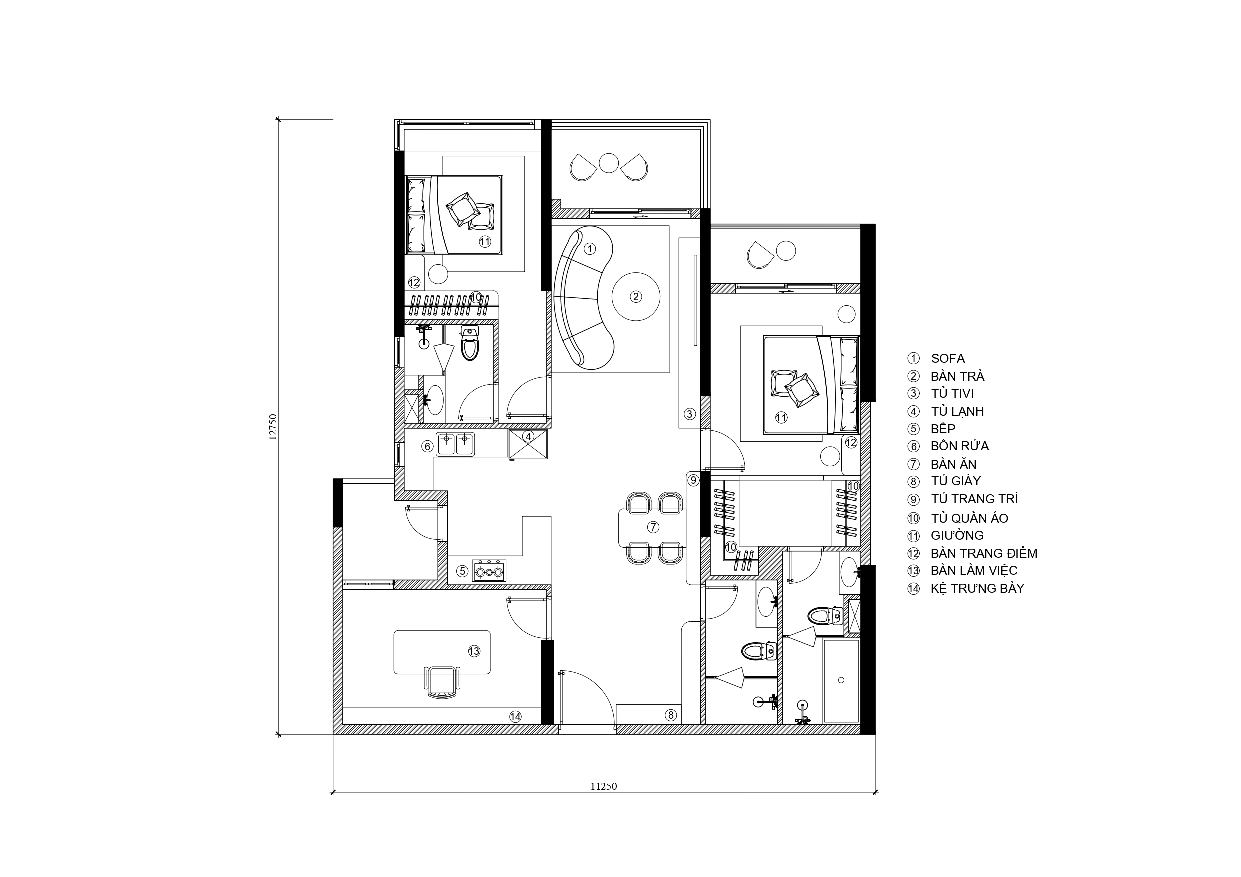
1. Mặt bằng căn hộ Diamond Centery tổng thể như thế nào?
Mặt bằng căn hộ Diamond Centery được bố trí hợp lý và thông minh, đảm bảo tối đa sự thông thoáng và tiện nghi cho người ở. Căn hộ được phân chia thành các khu vực chức năng rõ ràng như phòng khách, phòng bếp, phòng ngủ và nhà vệ sinh, mang đến sự riêng tư mà vẫn giữ được sự kết nối giữa các không gian.

Xem ngay: Thiết kế nội thất căn hộ Diamond Centery Celadon City - Không Gian Sống Cá Tính & Độc Đáo
2. Thiết kế nội thất căn hộ Diamond Centery phòng khách rộng rãi
Phòng khách là trung tâm của căn hộ, được thiết kế mở, liền kề với khu vực ăn uống và bếp, tạo sự liền mạch và thuận tiện trong sinh hoạt hàng ngày. Theo mặt bằng căn hộ Diamond Centery Celadon City mẫu mà PS bố trí, khu vực này có đủ diện tích để đặt một sofa lớn, bàn trà và kệ TV, mang đến không gian thư giãn lý tưởng cho cả gia đình.
3. Phòng ngủ riêng tư, tiện nghi
Thiết kế nội thất căn hộ Diamond Centery thường bao gồm 2-3 phòng ngủ, đảm bảo không gian nghỉ ngơi riêng tư cho từng thành viên trong gia đình. Mỗi phòng ngủ được thiết kế vuông vức, dễ dàng bố trí nội thất như giường, tủ quần áo, bàn trang điểm. Đồng thời, các phòng ngủ đều có cửa sổ lớn đón ánh sáng tự nhiên, giúp không gian luôn sáng và thoáng.
4. Căn hộ Diamond Centery với phòng bếp hiện đại
Khu vực bếp được thiết kế liền kề với phòng ăn, giúp tiết kiệm không gian và tạo sự thuận tiện trong việc di chuyển và sinh hoạt. Mặt bằng căn hộ Diamond Centery Celadon City bếp cho thấy một bố cục hợp lý với bếp nấu, bồn rửa và khu vực lưu trữ tủ lạnh, đảm bảo mọi nhu cầu sử dụng hàng ngày.

Xem ngay: Thiết kế nội thất căn hộ Diamond Centery Celadon City - Nhà Bình Yên Mang Giá Trị Lâu Bền
5. Nhà vệ sinh tiện nghi
Mỗi thiết kế nội thất căn hộ Diamond Centery đều được trang bị 2 phòng vệ sinh, bố trí cạnh phòng ngủ và khu vực sinh hoạt chung, giúp các thành viên trong gia đình dễ dàng sử dụng. Thiết kế nhà vệ sinh hiện đại, đầy đủ tiện nghi với bồn rửa, bồn tắm hoặc vòi sen, đảm bảo sự tiện lợi và thoải mái.
6. Tối ưu hóa diện tích và công năng sử dụng
Điểm nổi bật của mặt bằng căn hộ Diamond Centery chính là sự tối ưu hóa diện tích và công năng sử dụng. Với thiết kế mặt bằng không gian mở, các khu vực được bố trí hợp lý để đảm bảo tính tiện nghi mà vẫn thật thông thoáng. Bên cạnh đó, sự sắp đặt thông minh của các món đồ nội thất giúp tối đa hóa không gian sử dụng nhưng không gây cảm giác chật chội.
Mặt bằng căn hộ Diamond Centery là một minh chứng cho sự tinh tế trong thiết kế, tối ưu hóa không gian sống và mang đến sự tiện nghi cho cư dân. Với sự kết hợp giữa thiết kế hiện đại, tiện ích đầy đủ và vị trí đắc địa, dự án này chắc chắn là lựa chọn lý tưởng cho những ai đang tìm kiếm một không gian sống đẳng cấp tại TP.HCM.




