Kiến thức nhà đẹp

Kiến thức nhà đẹp
Thiết Kế Thi Công Nội Thất Có Đắt Không?

Thiết Kế Thi Công Nội Thất Có Đắt Không?

Khi xây dựng tổ ấm, yếu tố quan trọng khiến nhiều người băn khoăn là thiết kế thi công nội thất có tốn kém hay không. Xem thêm
Mua Nhà Hướng Nào Tốt? Bí Quyết Chọn Hướng Nhà Theo Phong Thủy

Mua Nhà Hướng Nào Tốt? Bí Quyết Chọn Hướng Nhà Theo Phong Thủy

Lời giải đáp cho các câu hỏi: "Mua nhà hướng nào tốt?", "Mua nhà hướng nào mát?" và "Không nên mua nhà hướng nào?". Xem thêm
Căn Hộ Akari City Giai Đoạn 2: Lựa Chọn Sáng Suốt Cho Cuộc Sống Hiện Đại

Căn Hộ Akari City Giai Đoạn 2: Lựa Chọn Sáng Suốt Cho Cuộc Sống Hiện Đại

Căn hộ Akari City giai đoạn 2 có những điểm nổi bật và thông tin quan trọng nào? Xem thêm
Chi Phí Thiết Kế Nội Thất Căn Hộ Akari City Bình Tân

Chi Phí Thiết Kế Nội Thất Căn Hộ Akari City Bình Tân

Chi phí thiết kế nội thất cho căn hộ Akari City Bình Tân dao động là bao nhiêu? Xem thêm
Thiết Kế Nội Thất Căn Hộ Akari City 85m2 2 Phòng Ngủ

Thiết Kế Nội Thất Căn Hộ Akari City 85m2 2 Phòng Ngủ

Thiết kế nội thất căn hộ Akari City lý tưởng cho những ai yêu thích không gian sống tinh tế và hiện đại. Xem thêm
Top 10 Mẫu Phòng Ngủ Đẹp Thiết Kế Nội Thất Căn Hộ Diamond Centery Celadon City

Top 10 Mẫu Phòng Ngủ Đẹp Thiết Kế Nội Thất Căn Hộ Diamond Centery Celadon City

Thiết kế nội thất căn hộ Diamond Centery Celadon City phòng ngủ, mang đến sự tinh tế và đẳng cấp cho không gian sống. Xem thêm
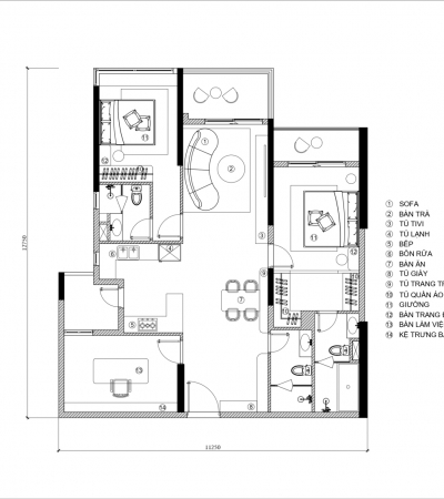
Chi Tiết Bố Trí Mặt Bằng Căn Hộ Diamond Centery Celadon City

Chi Tiết Bố Trí Mặt Bằng Căn Hộ Diamond Centery Celadon City

Mặt bằng căn hộ Diamond Centery mang đến cho cư dân không gian sống hiện đại, tiện nghi và tối ưu. Xem thêm
Thiết Kế Nội Thất Căn Hộ 2 Phòng Ngủ Diamond Centery Celadon City

Thiết Kế Nội Thất Căn Hộ 2 Phòng Ngủ Diamond Centery Celadon City

Thiết kế nội thất căn hộ 2 phòng ngủ Diamond Centery Celadon City theo phong cách Wabi-Sabi. Xem thêm
Chi Phí Thiết Kế Nội Thất Căn Hộ Diamond Centery Celadon City

Chi Phí Thiết Kế Nội Thất Căn Hộ Diamond Centery Celadon City

Chi phí thiết kế nội thất Chi phí thiết kế nội thất căn hộ Diamond Centery Celadon City thay đổi theo nhu cầu và nhiều yếu tố. Xem thêm
Thiết Kế Nội Thất Căn Hộ Diamond Centery Celadon City 120m2

Thiết Kế Nội Thất Căn Hộ Diamond Centery Celadon City 120m2

Thiết kế nội thất căn hộ Diamond Centery Celadon City Wabi Sabi Style với quy mô 2 phòng ngủ, 1 phòng làm việc. Xem thêm
Sức Mua Căn Hộ Khu Vực Phía Nam Giảm Mạnh

Sức Mua Căn Hộ Khu Vực Phía Nam Giảm Mạnh

Thị trường bất động sản tại TP.HCM và các tỉnh lân cận đang đối diện với một giai đoạn suy giảm nghiêm trọng. Xem thêm
TOP 8 Cây Phong Thủy Trong Nhà Cải Thiện Sinh Khí

TOP 8 Cây Phong Thủy Trong Nhà Cải Thiện Sinh Khí

Theo triết lý Phong Thủy cổ đại của Trung Quốc, có rất nhiều loại cây tuyệt đẹp có thể mang lại tiền tài và may mắn. Xem thêm
Thi công nội thất
Công trình nổi bật
Đăng ký nhận tin
Zalo
Hotline
Yêu cầu báo giá PS Interior Design